Située proche de toutes commodités et transports. Maison à étage construite dans les années 1960 -1970 d'environ 260 m² . Cette maison bénéficie de beaux volumes et d'un fort potentiel. Elle se compose d'une grande pièce de vie lumineuse avec cuisine semi ouverte, une salle de bain, 2 wc, 5 chambres et une salle d'eau. La maison dispose également d'une salle de jeux et buanderie. Vous trouverez une chambre, salle d'eau et wc en RDC. La maison offre un jardin sans vis à vis exposé plein ouest ainsi qu'une grande terrasse plein sud. elle est équipée d'un chauffage au gaz de ville, de la fibre et du tout à l'égout. Il est possible de stationner 2 à 3 véhicules sur la parcelle. Aucun travaux importants mis à part de redonner une seconde jeunesse à la façade. Un devis peut être fourni. Possibilité de créer 2 logements avec accès indépendant ou LOCAUX PROFESSIONNELS.
Maison 10 pièce(s) 5 chambre(s) 260 m²
Bilan énergétique
Diagnostics énergetiquesMontant estimé des dépenses annuelles d'énergie pour un usage standard est compris entre 4 550 € et 6 210 € . Prix moyens des énergies indexés sur les années 2021, 2022 et 2023 (abonnements compris).
Montant estimé des dépenses annuelles d'énergie pour un usage standard est compris entre 4 550 € et 6 210 € . Prix moyens des énergies indexés sur les années 2021, 2022 et 2023 (abonnements compris).
- Surface 260 m²
- carrez 260 m²
- terrain 600 m²
- séjour 50 m²
- 5 chambre(s)
- 1 salle(s) de bain
- 1 salle(s) d'eau
- construit en 1970
- cuisine séparée (équipée)
- 2 parking(s)
- exposition Sud-Ouest
- 2 niveau(x)
- 1er étage
- vue non
- balcon
- terrasse
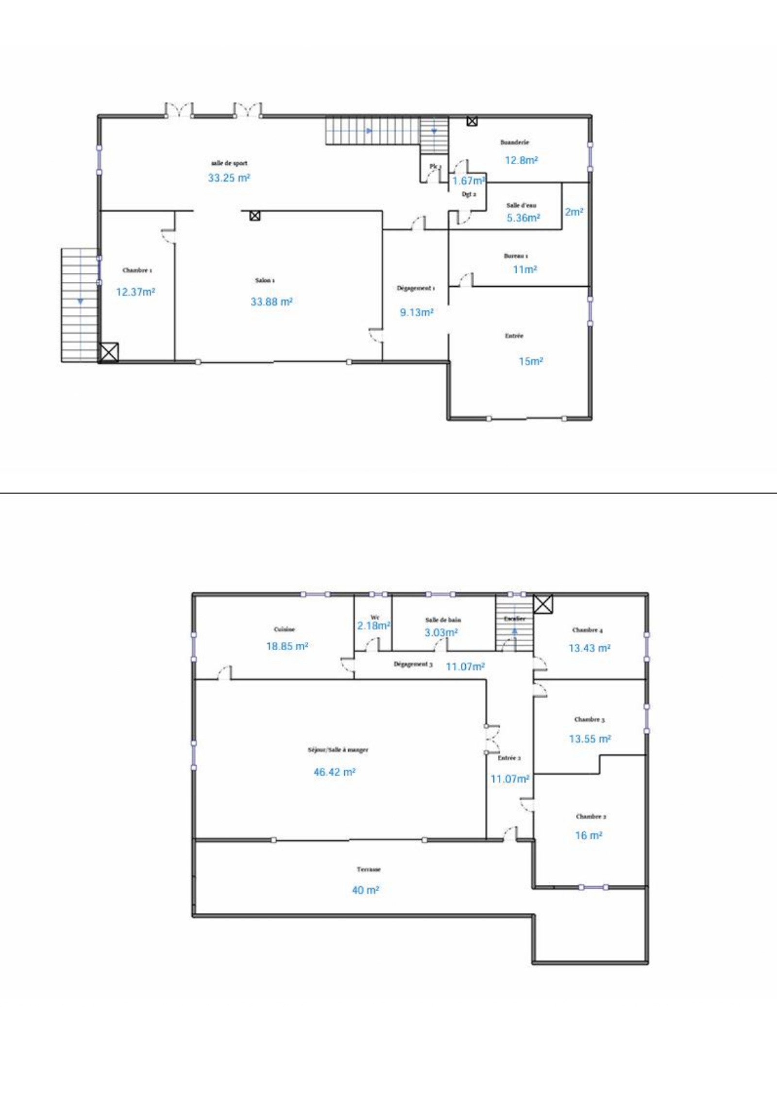
Composition
Composition de ce bienRez-de-chaussée
- bureau 11 m²
- cellier 2 m²
- Dégagement 9 m²
- pièce à vivre 33.88 m²
- chambre 12.37 m²
- pièce à vivre 33.25 m²
- buanderie 12.8 m²
- Salle d'eau + wc 5.36 m²
- entrée 15 m²
Etage 1
- Dégagement 11 m²
- chambre 16 m²
- chambre 13.55 m²
- chambre 13.43 m²
- salon/sejour 46.42 m²
- cuisine 18.85 m²
- WC m²
- salle de bain 3 m²
- terrasse 40 m²
Financier
Informations financièresSimulation
Calcul des mensualités
Les informations recueillies sur ce formulaire sont enregistrées dans un fichier informatisé par La Boite Immo agissant comme Sous-traitant du traitement pour la gestion de la clientèle/prospects de l'Agence / du Réseau qui reste Responsable du Traitement de vos Données personnelles.
La base légale du traitement repose sur l'intérêt légitime de l'Agence / du Réseau.
Elles sont conservées jusqu'à demande de suppression et sont destinées à l'Agence / au Réseau.
Conformément à la loi « informatique et libertés », vous disposez des droits d’accès, de rectification, d’effacement, d’opposition, de limitation et de portabilité de vos données. Vous pouvez retirer votre consentement à tout moment en contactant directement l’Agence / Le Réseau.
Consultez le site https://cnil.fr/fr pour plus d’informations sur vos droits.
Si vous estimez, après avoir contacté l'Agence / le Réseau, que vos droits « Informatique et Libertés » ne sont pas respectés, vous pouvez adresser une réclamation à la CNIL.
Nous vous informons de l’existence de la liste d'opposition au démarchage téléphonique « Bloctel », sur laquelle vous pouvez vous inscrire ici : https://www.bloctel.gouv.fr
Dans le cadre de la protection des Données personnelles, nous vous invitons à ne pas inscrire de Données sensibles dans le champ de saisie libre.
Ce site est protégé par reCAPTCHA, les Politiques de Confidentialité et les Conditions d'Utilisation de Google s'appliquent.